Archive
Two Fifty One – Learning Simple Lessons (commercial x 2 and drainage clashes).
Two Fifty One – Learning Simple Lessons (commercial x 2 and drainage clashes).
Off hiring. As a way of reducing site clutter I arranged with the plant hire company (Select – an internal within Laing O’Rourke) to off-hire some RMD soldiers and Haki stairs.
Simple and straightforward intent. Clearly getting rid of equipment would also mean the items are no longer paid for. So a few days later a 40ft low loader arrives from the plant hire company to collect the formwork. Utterly ridiculous size vehicle to remove the items which are small as shown above. A couple of weeks later and we receive a £300 collection bill! So in theory it would be cheaper to keep the items on site for months, than return them.
In short, the message is don’t forget about transportation/mobilisation costs of equipment. Albeit not a bank breaker, but a useful lesson early on.
Take off take offs.
Discussed on blogs recently was the subject of calling off drawings. I’ve called this “take off” here. Within the Two Fifty One project, my next focus is to plan the installation of the basement drainage. It is not a big job; the square area is about 1900m². However, having had the drainage runs priced from the drainage drawings by a Quantity Survey it makes sense to use their lengths and itemised totals as a check against the materials supplier totals. Lesson here is (I hope) that generally a lot of the length, area and volume calculations have already been completed for the project; therefore there is no need to repeat all of the work. However, caution must be applied to blindly assuming all is correct, designs have not changed, and it was priced correctly in the first place. Lesson – speak to the QS team (they aren’t just people who say no to all material orders!)
Drainage Clashes
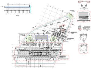
The Two Fifty One development’s basement is founded upon 300 plus piles split between a raft pile cap for the tower and a series of smaller pile caps for the office. There are also two tower crane bases within the basement area.

General arrangement pile cap layout
The drainage design was produced on a standalone drawing with neatly drawn foul and surface water runs spanning between manholes.
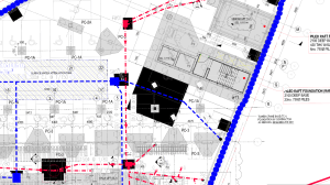
Overlaying the 2 drawings (pile caps, tower crane footings and drainage) highlighted 6 pretty obvious clashes.
3D images exemplify issue:
I would think, as the designer was asked to do the overlay, they would have amended the layout. Nope and in fact the designer warned us (contractor) that these changes may delay the issue of the reinforcement drawings! So an RFI later, a much improved drainage layout was produced.
Without wishing to get into another pre-novation discussion, the time to resolve this issue is at the client’s cost (main contract still not signed so design risk currently sits with client). So I hope this will yield success in about a month when the drainage installation starts.






