Archive
Understanding the risk in depressurisation well design
Blomfield Box Depressurisation Design.
Situation General. A review of the ground water monitoring was carried out earlier this month by the design authority (Mott McDonald) following concerns raised over the effectiveness of the current and the future depressurisation designs proposed by the primary contractor (Laing O’Rourke). The design authority highlighted its concerns over the proposed equipment and methods to be used to depressurise the sand and silt layers within the Lambeth Group of soils, on which London and much of the South East of the UK based.
Ground Investigation. There wasn’t one. Prior to ground works commencing on site the site was occupied by a building. The handover of the site was delayed. On the handover of site piling works commenced and no site specific ground investigation was completed, considered to be a luxury rather than necessity given the delays already against the programme and the potential financial implications of further programme delays. Despite the lack of a ground investigation the ground was assessed and has subsequently been proven during the excavation to follow the form typical for London Clay overlying the Lambeth Group of soils.
Engineering Risk .In the case of C502, the engineering risk is not asses to be the ingress of water to the excavation but the risk is due to the high pore pressure within the soil increasing the risk of base heave at the base of the excavation and shear failure of the exposed soil between the contiguous pile wall. In order to design against this risk the requirement is reduce the pore water pressure in order to increase the effective stress and thus the strength of the soil at the base of the excavation. Whereas water ingress is a property of a high permeability soil, high pore water pressure is a result of low permeability soil and as such the two conditions require different well designs to address the riskAdditional risks are identified as programme delays whilst works are halted pending the approval and implementation of an appropriate depressurisation system.
Contiguous pile wall with gaps exposing soil.
Current Depressurisation. The C502 contract and site (Liverpool Street) is in close proximity to the running tunnels being constructed adjacent and beneath the C502 site by the C510 contract. The nature of tunnelling has required C510 to have carried out depressurisation of the ground and since Aug 2013 C510 have been pumping at a rate of 300 to 600 l/hour from a system of ejector well points. The well points have been located in the sand / silt horizons identified during the C510 ground investigation. The ground investigation had shown that the pore water pressure was above the accepted levels specified by Crossrail. Following pumping by C510 the pore water pressure was demonstrated to have been reduced through the monitoring of a network of piezometors. In contrast C502 had adopted a deep large diameter well system with submersible pumps that are situated beneath the sand and silt layers within the Lambeth group of soils and have only achieved 100 to 200 per day. The two concerns that have been raised are:
1. C502 does not appear to have taken into account the effect of the depressurisation effect of the C510 ejector pump system in artificially lowering the pore water pressure. On completion of the running tunnels parallel to the C502 site, C502 will no longer be able to rely on the effects of C510 pumping.
2. The use of submersible pumps within the Lambeth group of soils will not be efficient enough in lowering the pore water pressure to within the acceptable levels due to the low permeability of the sands and silts.

In the case of C502, I have assessed that the current depressurisation system that has been employed is not appropriate for addressing the actual risk posed to the project. The above graph clearly shows the impact of the c510 ejector pumps on the porewater pressure with a steady decline in the pressure, althoug it still remains above the Amber levels set by Crossrail. Over the period of Dec 13 C510 stopped pumping during a pause in works. Over this period C502 continued to pump however the porewater pressure rapidly rose within the laminated beds. Then steadily reduced once C510 recommenced pumping, but still remaining aboe the amber levels. This is clear evidence that the current well design is insufficient to address the risk of high porewater pressure.
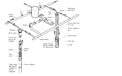
Well Design. Although further research is required to understand the details of the plethora of different well systems available currently, it is important to ensure that the correct system is employed to address the identified risk. The systems can loosely be categorised as Deep Well system or Vacuum assisted systems

Vacuum Assisted Wells. The basic principle of a vacuum system is that by generating a vacuum within the well an area of low pressure is formed which in turn lowers the porewater pressure. These systems are best employed in soils of low permeability in which pore water does not freely flow and must be drawn out of the soil to lower the overall porewater pressure.
Diagram showing layout of vacuum well system & Onsite Vacuum well
Submersible Pump Wells. A submersible large diameter well relies on a high permeability soil to create an area of low pressure and to establish a hydraulic gradient. These well systems are suited to high water flow and are used to address the risk of ground water ingress to a site.
Diagram showing submersible well system
Conclusion The publication of a report from Crossrail that has required C502 to revise their depressurisation system has caused a level of disagreement on site with many of the engineers seemingly missing what the actual risk. There appears to be a common misconception amongst the site engineers that high volumes of ground water ar symptomatic of high pore water pressure and the risk of base heave. As a result many do not share the Crossrail concerns of high pore pressure posing the risk of base heave and are appose to utilising a vacuum system that will delay the programme and cost ultimately more to install and run.
I can hear Johns words once again” never assume anyone really knows what they are talking about”




