Defects in Melbourne Fitout
I am currently working in the “tenancy team” at Norman Disney and Young in Perth CBD. The tenancy team completes small scale building services consultancy fit out projects in a short period of time – usually a couple of weeks from start to finish.
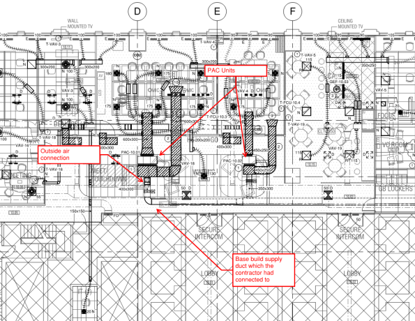
Amongst several other small projects, I have been given responsibility to consult on the mechanical construction phase of a HSBC tenancy in Collins Street, Melbourne. During the commissioning phase, a colleague of mine in Melbourne compiled a defect list, which happened to be extensive and include a number of concerning items. Given the tight timelines, by the time I received this document, users had moved in and started operating in a functional office space. One defect in particular was alarming – the mechanical contractor had connected outside air provision for two packaged air conditioning (PAC) units to the existing base-build supply ductwork. This presented a series of problems:
- Insufficient outside air provision to the two main meeting rooms.
- Imbalance of the existing base build system.
- Conditioned air being introduced to return air in the PAC mixing boxes.
To make matters worse, the client has unsurprisingly received complaints from the users – half complain about being too hot, while to rest are grumbling of being too cold. As the proverbial rolled down hill in my direction, I was asked as the mechanical design authority to rectify the situation. Both the builder and mechanical contractor were naturally eager to shift responsibility to the mechanical design, when in fact the system had been installed incorrectly. After an afternoon of rather animated phone calls and meetings, the mech contractor is now starring down the barrel at removing office users, taking ceilings down and installing the ductwork correctly. And rightly so! Understandably, both the builder and contractor were set on blaming the consultants design and I had the pleasure of going through the system design calculations with both parties. Luckily NDY’s design and quality assurance for this particular project was thorough and correct.
See Mark up attached.

I am somewhat surprised that the builder/ project management company allowed the user to move in before all of the defects had been addressed. Additionally, the original commissioning results are incorrect, invalid and wrong. To that end, I am pushing my project leader to request a re-test by the mech contractor – with a perhaps a young, enthusiastic, British engineer in attendance 😉
Update – Picture for you Fran.
xx

Mike,
Get some Gatorduct in there! (or Aus version of it…)
Is that a pun for something Stu?
Sorry Dolly, refers to the rapidly installable cheaper cardboard ductwork from my following blog. Bit esoteric…
Mike,
Good to see the blame game playing out – makes for a much more interesting, if challenging, problem to solve. I would definitely keep pushing the CoC to get ‘eyes on’ and conduct face to face stakeholder engagement.
P.S. Pls say hi to Karel and the team from me!
Fran.
Mike,
Great stuff, particularly for professional review. Hope you do get a chance to assure the follow on testing.
When relating the tale to reviewers beware being ‘given responsibility for…’ You earned the opportunity or sought it out rather than being passively given it. Lesser candidates are made responsible for things but it is often because they have to be given something to do or it was done out of pity. They say “I was given responsibility for…” You are better than that!
Secondly use the active verb “I consulted…” rather than merely being responsible for it. Lesser engineers are responsible for and ultimately the civvy equivalent of their troop staffy sorts it out or the boss covers for them (you will have observed both on placement somewhere). I have had review candidates responsible for many things that under detailed questioning it was apparent they knew nothing about and had merely managed the doing of the task by others. You know your stuff and actively consulted!
Although this seems really picky for a good blog post, which this is, the advice is intended to help the C crowd as they write their reports and all of you when you present yourselves to reviewers.
Was that helpful or should I just stop now?
Mike
If the young, enthusiastic, British engineer isn’t available I assume you’ll be going instead?